
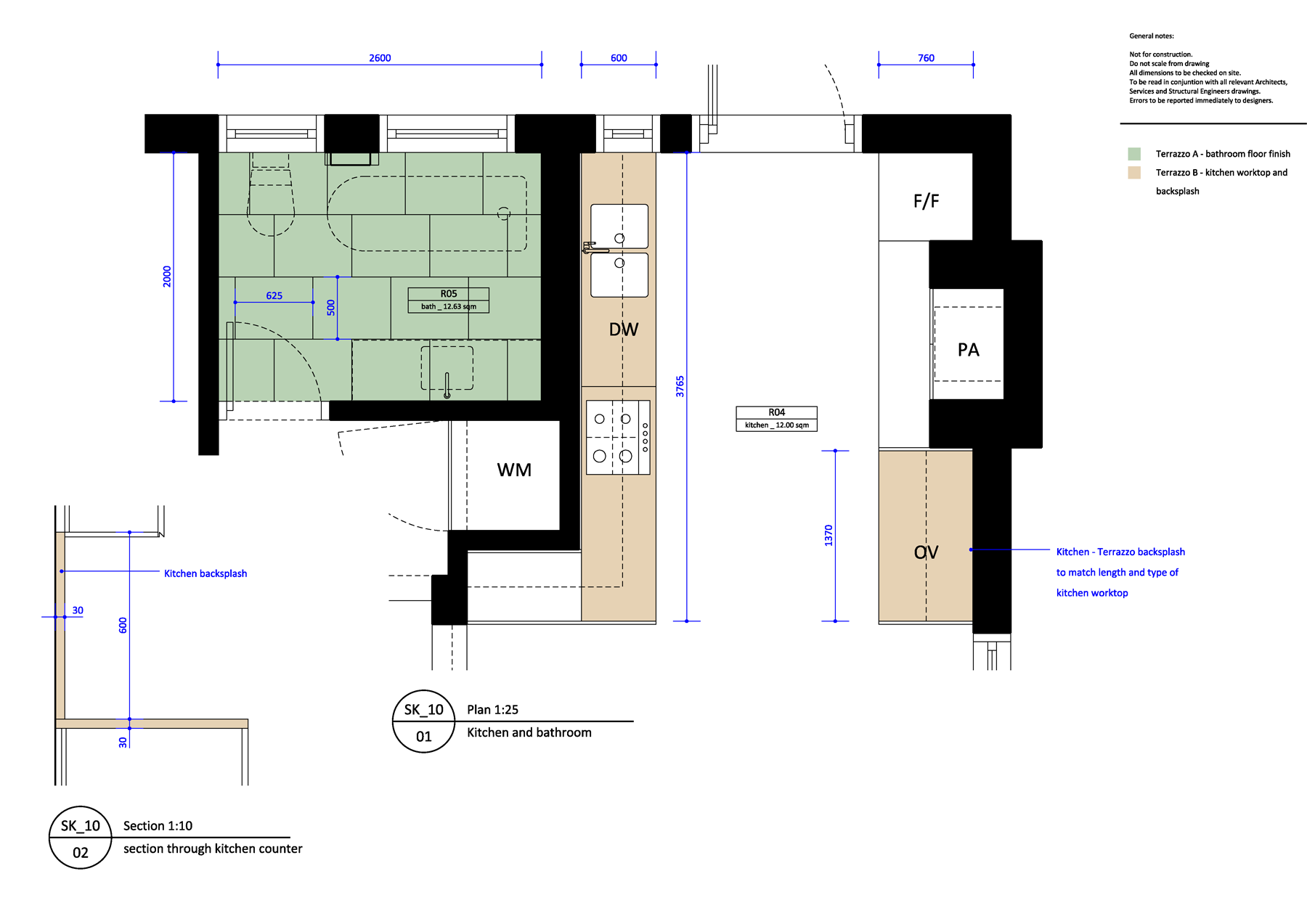
Refurbishment of a ground-floor apartment in Clapton, East London. The entire apartment layout has been revised and all wall and floor finishes removed due to their outdated and dilapidated condition.


We kept in close contact with the clients throughout the design and construction phases to deliver a non-obtrusive design that suits clients’ busy life in between London and Sydney and allow for their guests to use the flat in their absence.





