
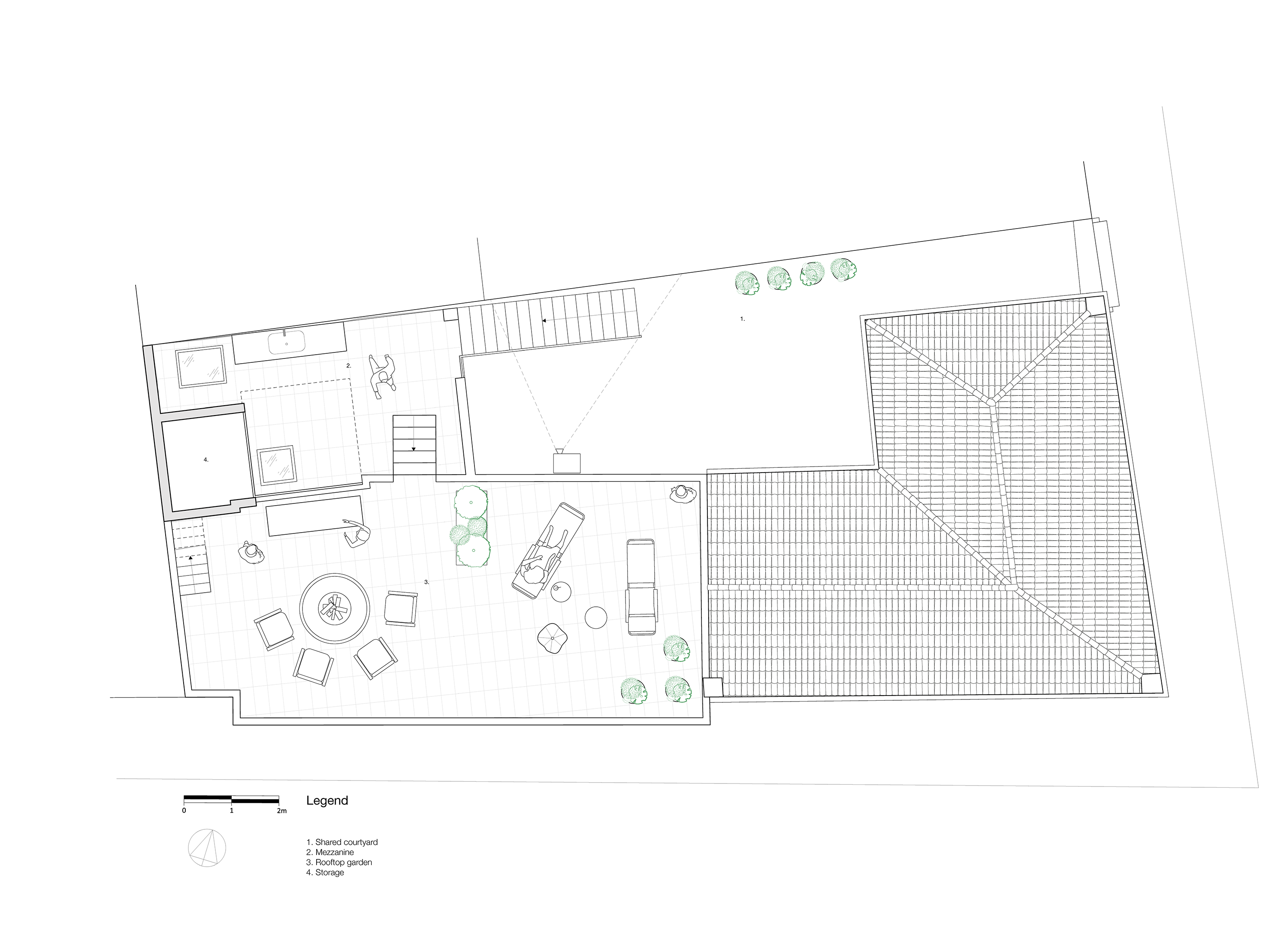
Refurbishment of a vernacular house in the area of Keramikos in the centre of Athens. The client brief asked for the renovation of the existing dilapidated shell and the division of the house in two independent units.



While each of the two new units was given sufficient privacy, the courtyard and roof terrace were kept common to preserve a feeling of small community.



We worked closely with the client and contractors on site to devise suitable techniques of exposing or maintaining historic layered building fabrics and complementing them with contemporary materials where needed, to achieve a unifying blended style.














We are well-versed in recognising the potential that dilapidated properties have. In the link below, you can see photos of the pre-existing apartment condition. The difference before and after our refurbishment is drastic.